Private Museum Austria
Design Team | Coop Himmelb(l)au | 2014
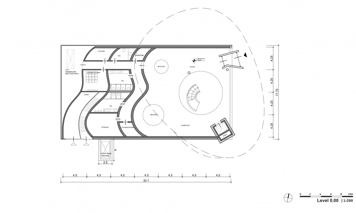
The design for this private museum in Asten is based on the idea of a cabinet of curiosities, a concept for collections originating in the Baroque period. This concept is especially appropriate for the unusual and small-scale objects in the private collection and has been interpreted in a contemporary manner.
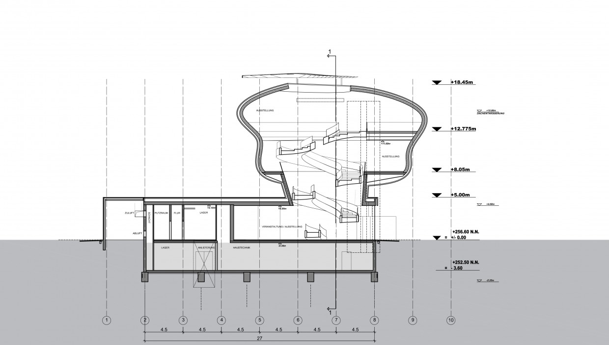
The project consists of two elements: a box shaped base building with an exhibition space plus event room and a two storey freeform museum floating on top. The chosen materials augment the contrast of these two elements: The square base building shows a cast-in-place concrete façade while the rounded wood structure of the museum is clad with stainless steel shingles.
TEAM
Client: Privat
Planning: COOP HIMMELB(L)AU Wolf D. Prix & Partner ZT GmbH
Design Principal / CEO: Wolf D. Prix
Design Partner: Karolin Schmidbaur
Design Architect: Stephan Sobl
Project Lead: Günther Weber
Project Team: Ursula Trost, Martina Bighignoli, Vanessa Haindl, Albara Arab





