Galerie Niederösterreich Krems
Design Team | Coop Himmelb(l)au | 2015
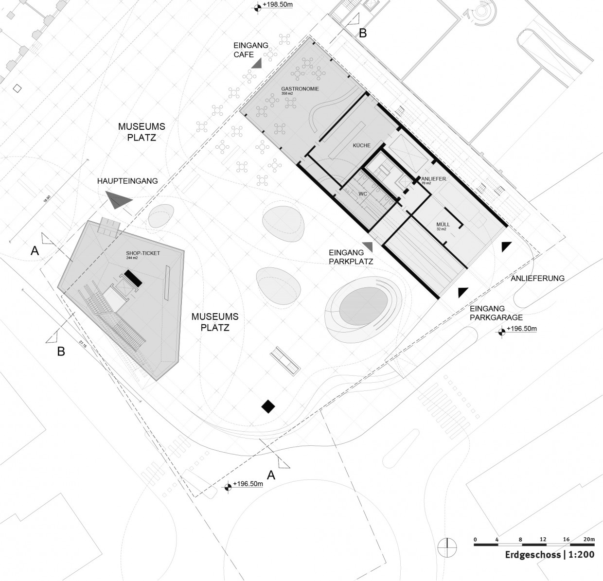
The new museum for the Galerie Niederösterreich in Krems creates a public space underneath the museum. It forms a building that becomes a part of the existing art and cultural surroundings. The architecture is lifted to create views to Krems, Stein and the surrounding landscape and enables to glimpses from the plaza inside the interior space of the building. Flying above the museum plaza, it forms a sheltered space and a new iconic building for the city of Krems.
Team
Planning: COOP HIMMELB(L)AU
Wolf D. Prix & Partner ZT GmbH
Design Principal: Wolf D. Prix
Project Partner: Karolin Schmidbaur
Project Architect: Tamara Soto, Benjamin Schmidt
Design Architect: Ursula Trost, Stephan Sobl, Ernesto Mulch
Project Team: Lina Baciuskaite, Büsra Dursun, Goepel Garwin, Jakob Braun, Matteo Vota, Jan Rancke





